Dupont ERA Makelaars B.V
Dupont ERA Makelaars B.V

Binnensingel 37
3134 NA VLAARDINGEN

€ 400.000,- k.k.

In de gewilde wijk Oostwijk en aan de rand van het centrum vindt u deze bijzondere bovenwoning met een ruime en lichte woonkamer. Het appartement beschikt over een grote woonkamer met authentieke details, nette keuken, 4 slaapkamers, nette badkamer en een dakterras aan de achterzijde en balkon aan voorzijde. De ligging is zeer centraal ten opzichte van verschillende uitvalswegen, sportfaciliteiten, de metro en het gezellige centrum van Vlaardingen met diverse winkels, supermarkten en horecagelegenheden.

Indeling
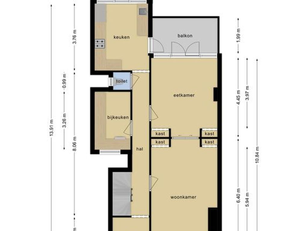
Entree met trapopgang naar de eerste verdieping

Eerste verdieping
Overloop met toegang tot de kamer met openslaande deuren naar het balkon aan de voorzijde. De ruime woonkamer is gelegen aan de voorzijde met grote raampartijen waardoor u veel lichtinval heeft. Vanuit de woonkamer loopt u via de en suite deuren naar de achterkamer, voorzien van 2 vaste kasten en openslaande deuren naar het ruime balkon. De royale keuken met houten en rvs frontinrichting, antracietgrijs aanrechtblad en diverse inbouwapparatuur; koel-vriescombinatie, inductiekookplaat, vaatwasser, combimagnetron , close-in-boiler en oven. Vanuit de keuken heeft u toegang tot dakterras op het oosten en het balkon. Vanuit de keuken komt u op de overloop en bevindt zich het toilet, bijkeuken deze kunt u gebruiken als wasruimte.

Tweede verdieping
Via een vaste trap bereikt u de tweede verdieping. Deze verdieping is voorzien van een ruime overloop met toegang tot alle vertrekken. De eerste slaapkamer ligt aan de achterzijde en vanuit deze kamer heeft u rechtstreeks toegang tot de inloopkast. De inpandige berging bevindt zich naast de inloopkast en is voorzien van de opstelplaats van de cv-combiketel. De tweede slaapkamer is voorzien van een vaste kast. De overige 2 slaapkamers zijn gelegen aan de voorzijde van het appartement. De moderne badkamer is voorzien van een inloopdouche, wastafelmeubel en een tweede toilet.

Bijzonderheden
- Bouwjaar 1910
- Energielabel F
- Woning gelegen op erfpachtgrond, afgekocht voor de gehele looptijd t/m 29-05-2047
- Geheel voorzien van houten kozijnen met grotendeels dubbele beglazing
- Maandelijkse VvE bijdrage € 100,- euro
- Verwarming en warm water middels cv-combiketel (Remeha 2018)
- In het historisch centrum van Vlaardingen
- Beschikt over een heerlijk dakterras
- Beschikt over 8 zonnepanelen op het dak (type Philips solar module PSM125/OT)
- Oplevering 1 maart 2026

Dupont behartigt de belangen van de verkopende partij. Neem uw eigen NVM aankoopmakelaar mee.

Deze informatie is door ons kantoor met de grootste zorg samengesteld aan de hand van de door de verkoper aan ons ter hand gestelde gegevens. Derhalve kunnen wij geen garanties verstrekken, noch kunnen wij op enigerlei wijze eventuele aansprakelijkheid voor deze gegevens aanvaarden. Alle verstrekte informatie moet uitsluitend gezien worden als een uitnodiging tot nader overleg dan wel tot het uitbrengen van een bod.

Overdracht

Vraagprijs
€ 400.000,- k.k.
Status
onder bod
Aanvaarding
in overleg

VvE checklist

Inschrijving KVK
Ja
Jaarlijkse vergadering
Ja
Periodieke bijdrage
Ja (100,00 per maand)
Reservefonds aanwezig
Ja
Onderhoudsplan
Nee
Opstalverzekering
Ja

Bouw

Soort woning
appartement
Soort appartement
bovenwoning
Aantal woonlagen
2
Woonlaag
1
Bouwvorm
bestaande bouw
Bouwjaar
1910
Open portiek
nee
Huidige bestemming
woonruimte
Onderhoud binnen
goed
Onderhoud buiten
goed
Voorzieningen
tv kabel, frans balkon
Isolatie
gedeeltelijk dubbel glas

Energie

Energielabel
F
Verwarming
cv ketel
Warm water
cv ketel
C.V.-ketel
gas gestookte combi-ketel uit 2018 van Remeha, eigendom

Bergruimte

Garage
geen garage
Parkeergelegenheid
betaald parkeren

Indeling

Aantal kamers
7
Aantal slaapkamers
5

Buitenruimte

Ligging
aan rustige weg, in woonwijk

Oppervlakten en inhoud

Woonoppervlakte
143 m²
Bergruimte oppervlakte
6 m²
Buitenruimte oppervlakte
19 m²
Binnensingel 37, VLAARDINGEN
Binnensingel 37, VLAARDINGEN
Binnensingel 37, VLAARDINGEN
Binnensingel 37, VLAARDINGEN
Binnensingel 37, VLAARDINGEN
Binnensingel 37, VLAARDINGEN
Binnensingel 37, VLAARDINGEN
Binnensingel 37, VLAARDINGEN
Binnensingel 37, VLAARDINGEN
Binnensingel 37, VLAARDINGEN
Binnensingel 37, VLAARDINGEN
Binnensingel 37, VLAARDINGEN
Binnensingel 37, VLAARDINGEN
Binnensingel 37, VLAARDINGEN
Binnensingel 37, VLAARDINGEN
Binnensingel 37, VLAARDINGEN
Binnensingel 37, VLAARDINGEN
Binnensingel 37, VLAARDINGEN
Binnensingel 37, VLAARDINGEN
Binnensingel 37, VLAARDINGEN
Binnensingel 37, VLAARDINGEN
Binnensingel 37, VLAARDINGEN
Binnensingel 37, VLAARDINGEN
Binnensingel 37, VLAARDINGEN
Binnensingel 37, VLAARDINGEN
Binnensingel 37, VLAARDINGEN
Binnensingel 37, VLAARDINGEN
Binnensingel 37, VLAARDINGEN
Binnensingel 37, VLAARDINGEN
Binnensingel 37, VLAARDINGEN
Binnensingel 37, VLAARDINGEN
Binnensingel 37, VLAARDINGEN
Binnensingel 37, VLAARDINGEN plattegrond 0
Binnensingel 37, VLAARDINGEN plattegrond 1

Meer weten over Binnensingel 37 in VLAARDINGEN?