Dupont ERA Makelaars B.V
Dupont ERA Makelaars B.V

Voltastraat 25B
3112 MN SCHIEDAM

€ 165.000,- k.k.

Klussers opgelet! Centraal gelegen 2-kamer benedenwoning in Schiedam Oost. De woning heeft een ruime woonkamer, keuken, badkamer, een slaapkamer en een aan te leggen achtertuin. De woning dient geheel intern gemoderniseerd te worden. De woning is gunstig gesitueerd in de nabijheid van het station Schiedam Centrum met tram-, metro en treintracé en de bushalte. Ook diverse uitvalswegen zijn in directe omgeving aanwezig. Het stadscentrum van Schiedam met haar historische binnenstad, een theater, stedelijk musea en diverse horecagelegenheden liggen op een kwartier loopafstand.

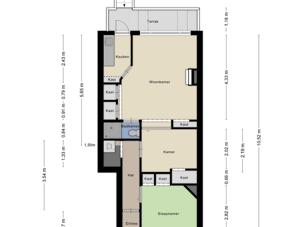
Indeling

Begane grond
Entree, tochtportaal, hal, trapkast met meterkast, toegang tot alle vertrekken. De woonkamer is voorzien van een laminaatvloer en heeft veel lichtinval door de grote raampartij. Vanwege de indeling is hier eventueel nog een tweede slaapkamer te realiseren. De keuken is eenvoudig van opzet en is naar eigen wens te realiseren. Vanuit de keuken is de achtertuin toegankelijk. De slaapkamer van ca 8 m² is gelegen aan de voorzijde van de woning. De badkamer is toegankelijk vanuit de woonkamer en voorzien van een douche, toilet en een wastafel.

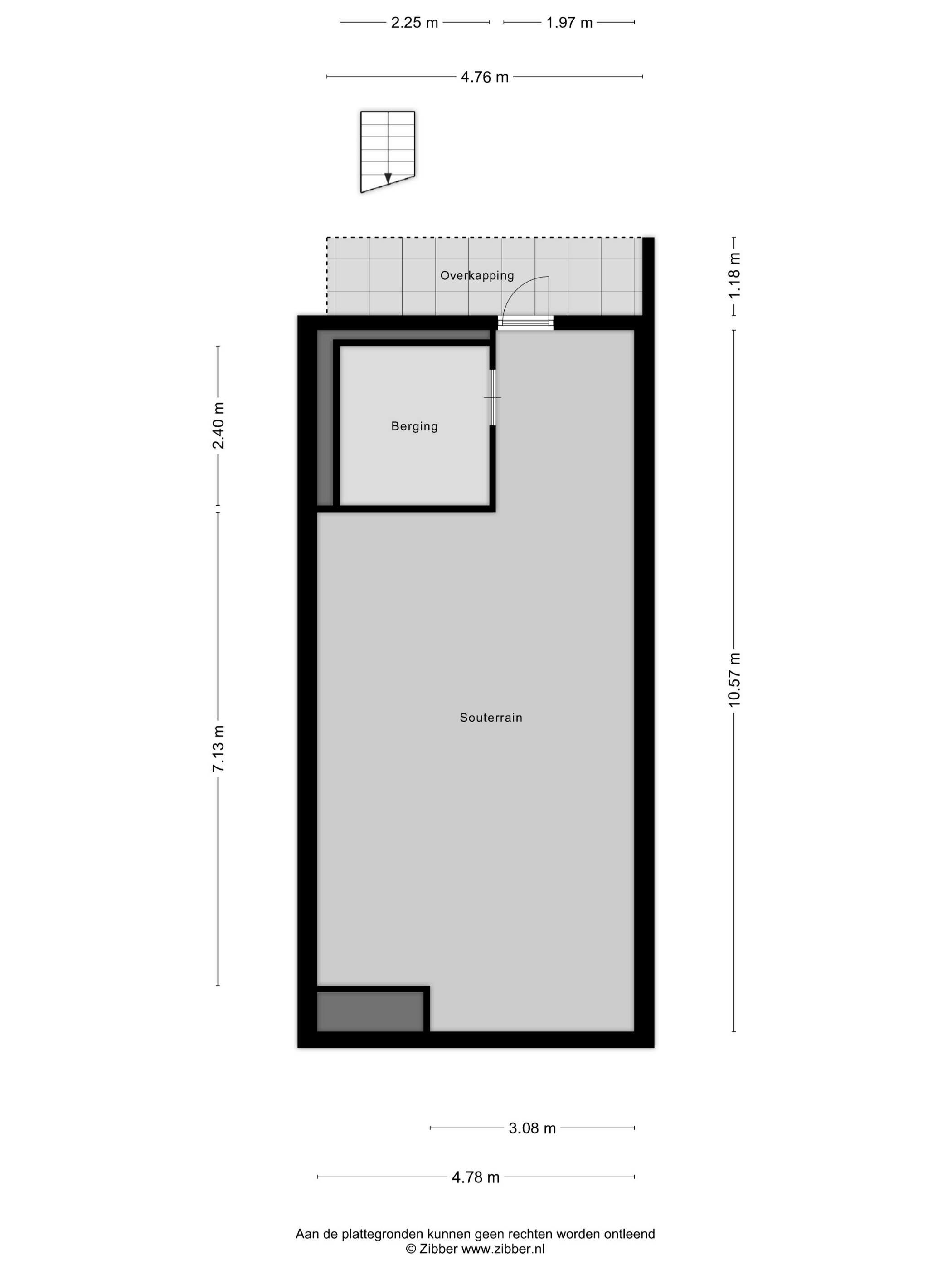
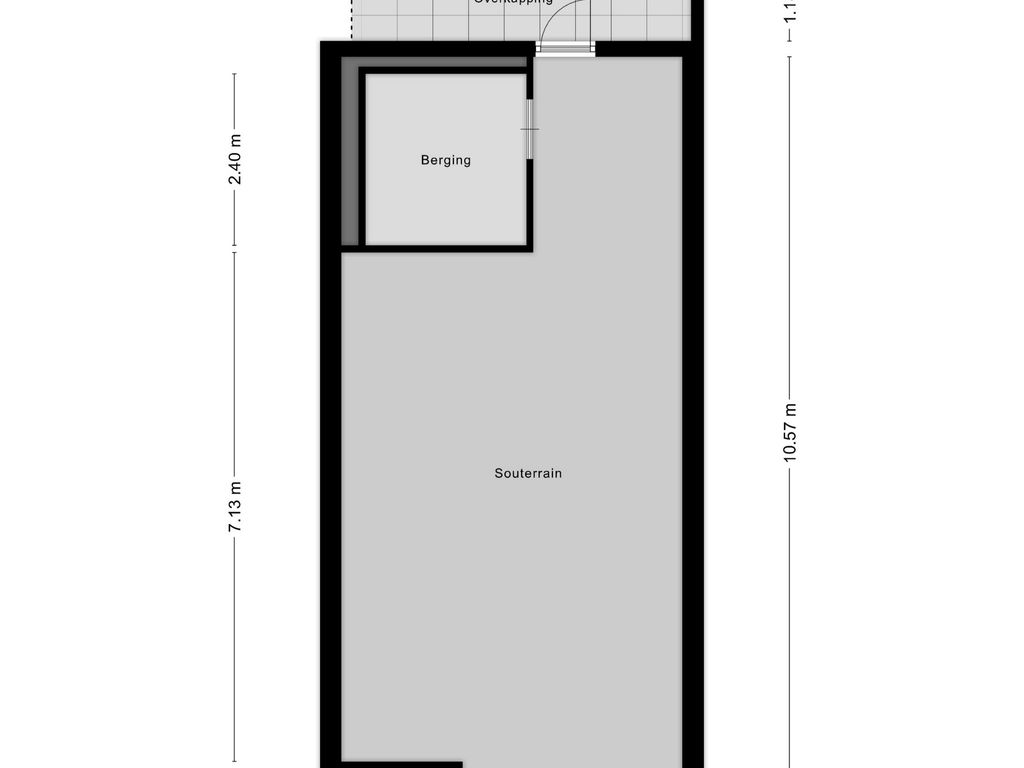
Achtertuin
De achtertuin is gelegen op het oosten en is naar eigen wens aan te leggen. Vanwege de ruimte zijn er een legio aan mogelijkheden om hier een gezellige tuin van te maken. Via de tuin heeft u toegang tot het nog aan te leggen souterrain.

Afmetingen
Voor de afmetingen van de diverse vertrekken verwijzen wij u naar de plattegronden.

Bijzonderheden
- Bouwjaar 1928
- Energielabel G
- Gelegen op eigen grond
- Maandelijkse VvE bijdrage: € ………………………
- Geheel voorzien van houten kozijnen met enkele beglazing
- Ouderdomsclausule, asbestclausule en niet-zelfbewoningclausule van toepassing
- Opkoopbescherming in de wijk van toepassing
- Oplevering per direct

Dupont behartigt de belangen van de verkopende partij. Neem uw eigen NVM aankoopmakelaar mee.

Deze informatie is door ons kantoor met de grootste zorg samengesteld aan de hand van de door de verkoper aan ons ter hand gestelde gegevens. Derhalve kunnen wij geen garanties verstrekken, noch kunnen wij op enigerlei wijze eventuele aansprakelijkheid voor deze gegevens aanvaarden. Alle verstrekte informatie moet uitsluitend gezien worden als een uitnodiging tot nader overleg dan wel tot het uitbrengen van een bod.

Overdracht

Vraagprijs
€ 165.000,- k.k.
Status
in aanmelding
Aanvaarding
in overleg

VvE checklist

Inschrijving KVK
Nee
Jaarlijkse vergadering
Nee
Periodieke bijdrage
Nee
Reservefonds aanwezig
Nee
Onderhoudsplan
Nee
Opstalverzekering
Nee

Bouw

Soort woning
appartement
Soort appartement
benedenwoning
Aantal woonlagen
1
Woonlaag
1
Bouwvorm
bestaande bouw
Bouwjaar
1928
Open portiek
nee
Huidige bestemming
woonruimte
Onderhoud binnen
matig tot redelijk
Onderhoud buiten
redelijk tot goed

Energie

Energielabel
G

Bergruimte

Garage
geen garage
Parkeergelegenheid
betaald parkeren, parkeervergunningen

Indeling

Aantal kamers
2
Aantal slaapkamers
1

Buitenruimte

Ligging
aan rustige weg, in woonwijk
Tuin
achtertuin met een oppervlakte van 44 m² en is gelegen op het oosten

Oppervlakten en inhoud

Woonoppervlakte
46 m²
Inpandige ruimte oppervlakte
48 m²
Buitenruimte oppervlakte
11 m²
Voltastraat 25B, SCHIEDAM
Voltastraat 25B, SCHIEDAM
Voltastraat 25B, SCHIEDAM
Voltastraat 25B, SCHIEDAM
Voltastraat 25B, SCHIEDAM
Voltastraat 25B, SCHIEDAM
Voltastraat 25B, SCHIEDAM
Voltastraat 25B, SCHIEDAM
Voltastraat 25B, SCHIEDAM
Voltastraat 25B, SCHIEDAM
Voltastraat 25B, SCHIEDAM
Voltastraat 25B, SCHIEDAM
Voltastraat 25B, SCHIEDAM
Voltastraat 25B, SCHIEDAM
Voltastraat 25B, SCHIEDAM
Voltastraat 25B, SCHIEDAM
Voltastraat 25B, SCHIEDAM
Voltastraat 25B, SCHIEDAM
Voltastraat 25B, SCHIEDAM
Voltastraat 25B, SCHIEDAM
Voltastraat 25B, SCHIEDAM
Voltastraat 25B, SCHIEDAM plattegrond 0
Voltastraat 25B, SCHIEDAM plattegrond 1
Voltastraat 25B, SCHIEDAM plattegrond 2

Meer weten over Voltastraat 25B in SCHIEDAM?