Dupont ERA Makelaars B.V
Dupont ERA Makelaars B.V

Dwarsstraat 12
3114 LC SCHIEDAM

verkocht onder voorbehoud

Gelegen in de gezellige Noletbuurt in Schiedam-Zuid staat deze hoekwoning (gebouwd in 2001) van een drie-onder-een-kap, een ideale plek voor wie comfortabel wil wonen in een rustige en kindvriendelijke omgeving. De woning beschikt over zowel een voortuin als een achtertuin op het noordwesten, voorzien van een houten berging en een praktische achterom. Binnen tref je een goed onderhouden 4-kamer woning met een fijne indeling en volop mogelijkheden voor elk gezinslid. Een heerlijke plek waar je direct kunt intrekken en met plezier zult wonen.

De Noletbuurt is een charmante en levendige wijk met een authentieke Schiedamse uitstraling. Hier woon je in een rustige omgeving met karakteristieke straatjes, terwijl alle dagelijkse voorzieningen binnen handbereik liggen. De wijk ligt op loopafstand van het centrum en nabij de historische distilleerderijen en molens – een unieke combinatie van stads gemak en historische sfeer. Met supermarkten, scholen, speeltuintjes en openbaar vervoer in de directe omgeving is dit een fijne woonplek voor jong en oud. De bereikbaarheid is uitstekend: binnen enkele minuten ben je in het centrum, op station Schiedam-Centrum of op de uitvalswegen richting Rotterdam.

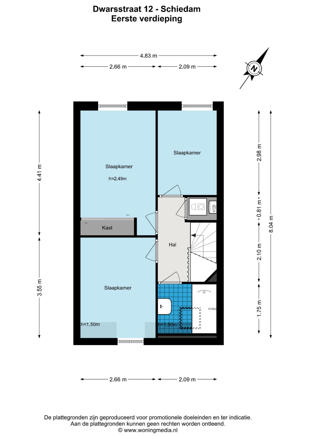
Indeling:

Begane grond
Binnenkomst via de entree/hal met meterkast en een keurig, geheel betegeld toilet voorzien van wandcloset en hardstenen fonteintje. De lichte woonkamer voelt direct prettig aan en beschikt over een grote schuifpui naar de achtertuin op het noordwesten. Hier geniet je van een aluminium overkapping, een praktische achterom en een houten berging met elektriciteit—ideaal voor opslag of hobby.
De halfopen keuken in hoekopstelling is compleet uitgerust met een koel-/vriescombinatie, apothekerskast, 5-pits gas-op-glas kookplaat, RVS afzuigkap, draaicarrousel, vaatwasser en magnetron. De gehele begane grond is afgewerkt met een nette tegelvloer.

1e verdieping
De eerste verdieping is volledig voorzien van laminaat en biedt een praktische overloop met aparte ruimte voor de wasmachine- en drogeraansluiting. Er zijn drie fijne slaapkamers, waarvan één met een ruime schuifwandkast. De moderne, geheel betegelde badkamer is uitgerust met een ligbad/douchecombinatie, wastafelmeubel, handdoekenradiator en een Velux dakraam voor extra daglicht en ventilatie.

Afmetingen
Voor de afmetingen van de diverse vertrekken verwijzen wij u naar de plattegronden.

Bijzonderheden
• Bouwjaar 2001
• Energielabel B
• Erfpachtcanon afgekocht tot en met 31-12-2049, einddatum recht 31-10-2098
• Volledig geïsoleerd
• Verwarming en warm water middels Intergas Kombi Kompakt HRE 28/24A CW4 (2024)
• Heerlijke achtertuin op het noordwesten
• Oplevering in overleg

Dupont behartigt de belangen van de verkopende partij. Neem uw eigen NVM aankoopmakelaar mee.

Deze informatie is door ons kantoor met de grootste zorg samengesteld aan de hand van de door de verkoper aan ons ter hand gestelde gegevens. Derhalve kunnen wij geen garanties verstrekken, noch kunnen wij op enigerlei wijze eventuele aansprakelijkheid voor deze gegevens aanvaarden. Alle verstrekte informatie moet uitsluitend gezien worden als een uitnodiging tot nader overleg dan wel tot het uitbrengen van een bod.

Overdracht

Vraagprijs
€ 335.000,- k.k.
Status
verkocht onder voorbehoud
Aanvaarding
in overleg

Bouw

Soort woning
woonhuis
Soort woonhuis
eengezinswoning
Type woonhuis
eindwoning
Aantal woonlagen
2
Bouwvorm
bestaande bouw
Bouwjaar
2001
Huidige bestemming
woonruimte
Onderhoud binnen
goed
Onderhoud buiten
goed
Voorzieningen
mechanische ventilatie, tv kabel, schuifpui, glasvezel kabel
Isolatie
volledig geisoleerd

Energie

Energielabel
B
Verwarming
cv ketel
Warm water
cv ketel
C.V.-ketel
gas gestookte combi-ketel uit 2024 van Intergas Kombi Kompakt HRE 28/24A CW4, eigendom

Bergruimte

Garage
geen garage
Parkeergelegenheid
openbaar parkeren
Schuur/berging
vrijstaand hout

Indeling

Aantal kamers
4
Aantal slaapkamers
3

Buitenruimte

Ligging
aan rustige weg, in woonwijk
Tuin
achtertuin met een oppervlakte van 46 m² en is gelegen op het noordwesten

Oppervlakten en inhoud

Woonoppervlakte
76 m²
Perceeloppervlakte
115 m²
Inhoud
267 m³
Bergruimte oppervlakte
6 m²

Bouw

Soort
geen garage
Capaciteit
voorzien van elektra
Dwarsstraat 12, SCHIEDAM
Dwarsstraat 12, SCHIEDAM
Dwarsstraat 12, SCHIEDAM
Dwarsstraat 12, SCHIEDAM
Dwarsstraat 12, SCHIEDAM
Dwarsstraat 12, SCHIEDAM
Dwarsstraat 12, SCHIEDAM
Dwarsstraat 12, SCHIEDAM
Dwarsstraat 12, SCHIEDAM
Dwarsstraat 12, SCHIEDAM
Dwarsstraat 12, SCHIEDAM
Dwarsstraat 12, SCHIEDAM
Dwarsstraat 12, SCHIEDAM
Dwarsstraat 12, SCHIEDAM
Dwarsstraat 12, SCHIEDAM
Dwarsstraat 12, SCHIEDAM
Dwarsstraat 12, SCHIEDAM
Dwarsstraat 12, SCHIEDAM
Dwarsstraat 12, SCHIEDAM
Dwarsstraat 12, SCHIEDAM
Dwarsstraat 12, SCHIEDAM
Dwarsstraat 12, SCHIEDAM
Dwarsstraat 12, SCHIEDAM
Dwarsstraat 12, SCHIEDAM plattegrond 0
Dwarsstraat 12, SCHIEDAM plattegrond 1
Dwarsstraat 12, SCHIEDAM plattegrond 2

Meer weten over Dwarsstraat 12 in SCHIEDAM?