Dupont ERA Makelaars B.V
Dupont ERA Makelaars B.V

Rembrandtlaan 24A
3117 VK SCHIEDAM

€ 290.000,- k.k.

In Schiedam-West bieden wij deze verrassend ruime 3-kamer benedenwoning aan, voorzien van een netjes aangelegde achtertuin. De woning is zorgvuldig onderhouden, waardoor je hier direct zonder verbouwen kunt intrekken. Binnen vind je een lichte en sfeervolle woonkamer, een moderne keuken en badkamer en 2 slaapkamers, waaronder een ruime hoofdslaapkamer met openslaande deuren naar de tuin; ideaal om op zonnige dagen binnen en buiten met elkaar te verbinden.

De Rembrandtlaan ligt in een centrale woonomgeving met diverse voorzieningen op loopafstand. In de buurt vind je buurtwinkels, supermarkten, basisscholen, sportparken en speelgelegenheden. Ook het openbaar vervoer (bus en metro) bevindt zich vlakbij, net als de uitvalswegen richting de A4 en A20, waardoor de bereikbaarheid uitstekend is.
Kortom: een instapklare woning met een fijne tuin, gelegen op een praktische en centrale locatie in Schiedam-West.
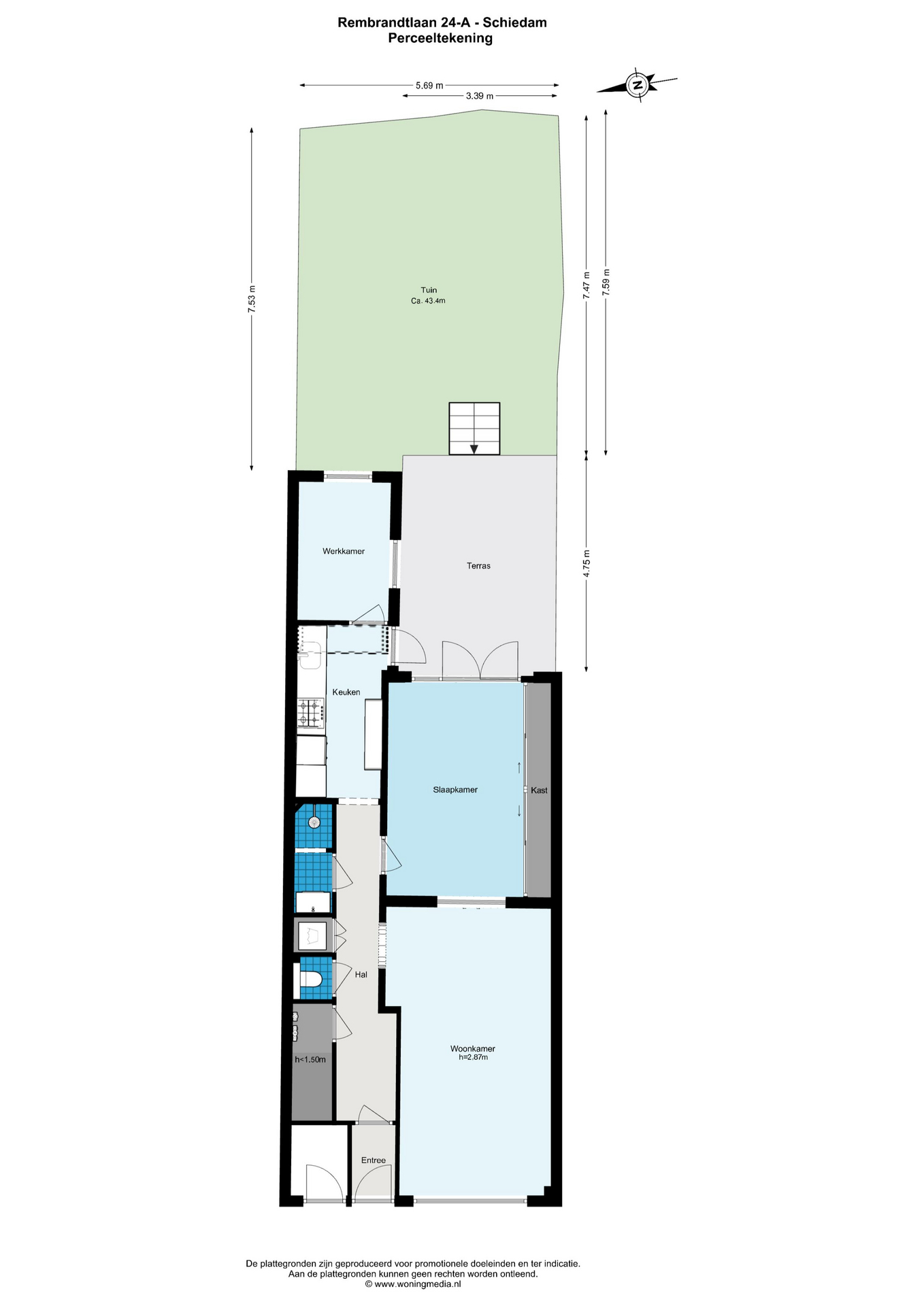
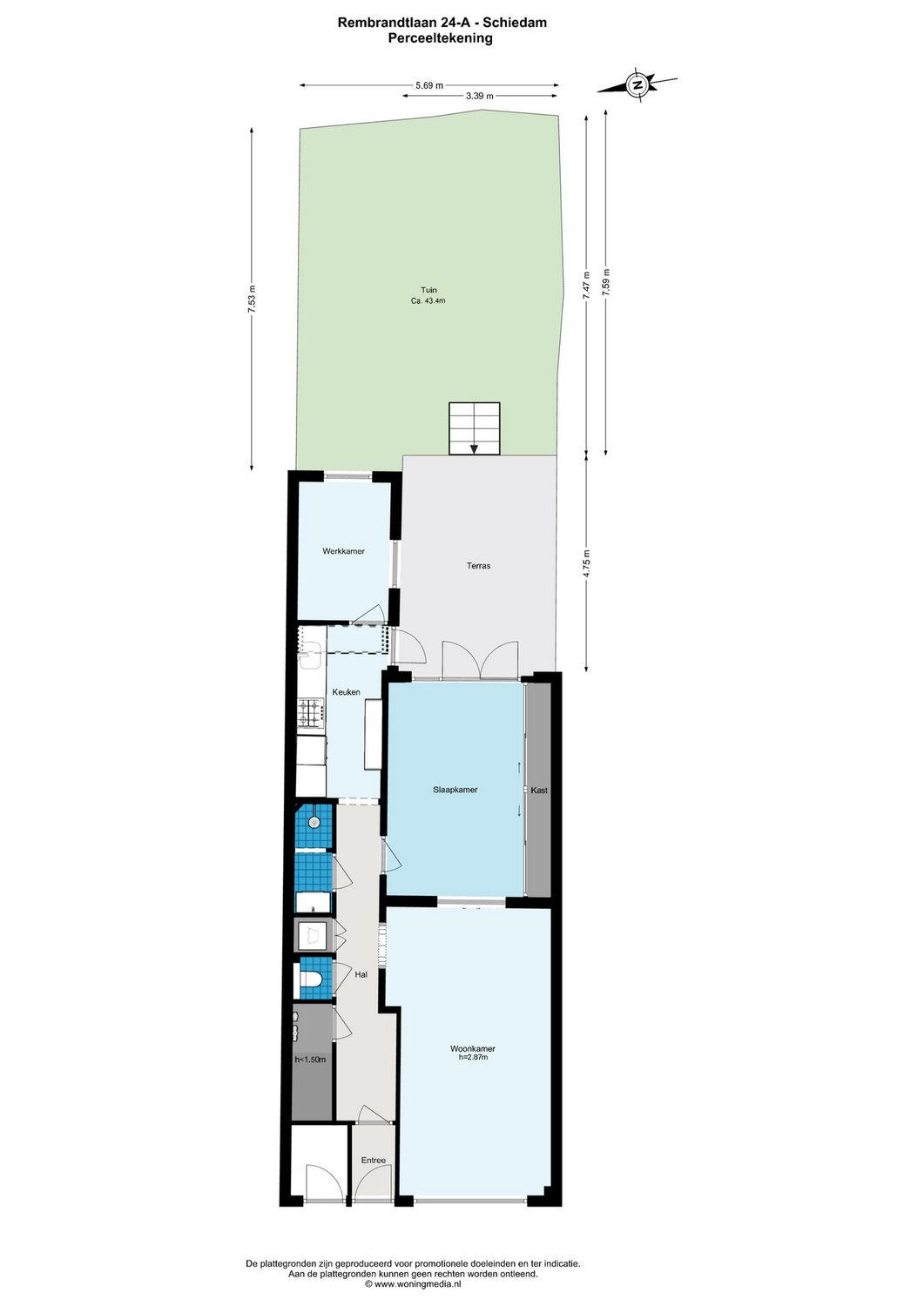
Indeling

Begane grond
Entree met glas-in-lood bovenraam, tochtportaal, hal met meterkast, wasruimte, toiletruimte en toegang tot alle vertrekken. De sfeervolle woonkamer van ca. 21 m² biedt dankzij de nette laminaatvloer en glas-in-lood en suite deuren een warme en uitnodigende sfeer. Vanuit hier heb je een vrij en groen uitzicht over de boomrijke dubbele laan. De ruime hoofdslaapkamer (ca. 14 m²) staat middels de en suite deuren in verbinding met de woonkamer is voorzien van een schuifdeurkastenwand, plafondspots en een hardhouten pui met openslaande deuren naar de tuin, waardoor binnen en buiten op natuurlijke wijze in elkaar overlopen. De moderne keuken is uitgerust met een afzuigkap, koelkast, vriezer, 4-zones inductiekookplaat, oven, kokend water kraan, en een klimaat wijnkoelkast. Tevens heeft u vanuit hier direct toegang tot de achtertuin. Aan de achterzijde bevindt zich tevens een tweede slaapkamer van ca. 6 m², ideaal als werk-, logeer- of hobbykamer. De badkamer beschikt over een wastafelmeubel met spiegelkast, inloopdouche, designradiator en plafondspots.

Achtertuin
De fraai aangelegde achtertuin, ca. 7,5 meter diep en 5,7 meter breed, is een heerlijke plek om van het buitenleven te genieten. De tuin is voorzien van een hardhouten vlonderterras, diverse beplanting en een tweede terras achterin voor zowel zon als schaduw op elk moment van de dag. Dankzij de praktische achterom is de tuin niet alleen sfeervol, maar ook bijzonder functioneel.

Afmetingen
Voor de afmetingen van de diverse vertrekken verwijzen wij u naar de plattegronden.

Bijzonderheden
- Bouwjaar 1929
- Energielabel D
- Gelegen op eigen grond
- Verwarming en warm water middels cv-combiketel (Vaillant, 2017)
- Actieve VvE: maandelijkse bijdrage € 100,- euro
- Glasvezelkabel aanwezig
- Woning volledig verbouwd in 2021
- Voorzijde voorzien van kunststof kozijnen en dubbele beglazing en beschikt over elektrisch bedienbare rolluiken
- Achterzijde voorzien van houten kozijnen en dubbele beglazing
- Woonkamer beschikt over een airconditioningsysteem
- Ouderdomsclausule van toepassing
- Gelegen in een gebied met opkoopbescherming
- Oplevering begin maart 2026

Dupont behartigt de belangen van de verkopende partij. Neem uw eigen NVM aankoopmakelaar mee. Alle verstrekte informatie moet beschouwd worden als een uitnodiging tot het doen van een bod of om in onderhandeling te treden. Er kunnen geen rechten worden ontleend aan deze woninginformatie.

Deze informatie is door ons kantoor met de grootste zorg samengesteld aan de hand van de door de verkoper aan ons ter hand gestelde gegevens. Derhalve kunnen wij geen garanties verstrekken, noch kunnen wij op enigerlei wijze eventuele aansprakelijkheid voor deze gegevens aanvaarden. Alle verstrekte informatie moet uitsluitend gezien worden als een uitnodiging tot nader overleg dan wel tot het uitbrengen van een bod.

Overdracht

Vraagprijs
€ 290.000,- k.k.
Status
beschikbaar
Aanvaarding
in overleg

VvE checklist

Inschrijving KVK
Ja
Jaarlijkse vergadering
Ja
Periodieke bijdrage
Ja (100,00 per maand)
Reservefonds aanwezig
Ja
Onderhoudsplan
Nee
Opstalverzekering
Ja

Bouw

Soort woning
appartement
Soort appartement
benedenwoning
Aantal woonlagen
1
Woonlaag
1
Bouwvorm
bestaande bouw
Bouwjaar
1929
Open portiek
nee
Huidige bestemming
woonruimte
Onderhoud binnen
goed
Onderhoud buiten
goed
Voorzieningen
rolluiken, tv kabel, airconditioning, glasvezel kabel
Isolatie
dubbel glas

Energie

Energielabel
D
Verwarming
cv ketel
Warm water
cv ketel
C.V.-ketel
gas gestookte combi-ketel uit 2017 van Vaillant, eigendom

Bergruimte

Parkeergelegenheid
openbaar parkeren

Indeling

Aantal kamers
3
Aantal slaapkamers
2

Buitenruimte

Ligging
aan drukke weg, in centrum, in woonwijk
Tuin
achtertuin met een oppervlakte van 43 m² en is gelegen op het westen

Oppervlakten en inhoud

Woonoppervlakte
69 m²
Buitenruimte oppervlakte
17 m²
Rembrandtlaan 24A, SCHIEDAM
Rembrandtlaan 24A, SCHIEDAM
Rembrandtlaan 24A, SCHIEDAM
Rembrandtlaan 24A, SCHIEDAM
Rembrandtlaan 24A, SCHIEDAM
Rembrandtlaan 24A, SCHIEDAM
Rembrandtlaan 24A, SCHIEDAM
Rembrandtlaan 24A, SCHIEDAM
Rembrandtlaan 24A, SCHIEDAM
Rembrandtlaan 24A, SCHIEDAM
Rembrandtlaan 24A, SCHIEDAM
Rembrandtlaan 24A, SCHIEDAM
Rembrandtlaan 24A, SCHIEDAM
Rembrandtlaan 24A, SCHIEDAM
Rembrandtlaan 24A, SCHIEDAM
Rembrandtlaan 24A, SCHIEDAM
Rembrandtlaan 24A, SCHIEDAM
Rembrandtlaan 24A, SCHIEDAM
Rembrandtlaan 24A, SCHIEDAM
Rembrandtlaan 24A, SCHIEDAM
Rembrandtlaan 24A, SCHIEDAM
Rembrandtlaan 24A, SCHIEDAM
Rembrandtlaan 24A, SCHIEDAM
Rembrandtlaan 24A, SCHIEDAM plattegrond 0
Rembrandtlaan 24A, SCHIEDAM plattegrond 1
Rembrandtlaan 24A, SCHIEDAM plattegrond 2
Rembrandtlaan 24A, SCHIEDAM plattegrond 3
Rembrandtlaan 24A, SCHIEDAM plattegrond 4
Rembrandtlaan 24A, SCHIEDAM plattegrond 5

Meer weten over Rembrandtlaan 24A in SCHIEDAM?