Dupont ERA Makelaars B.V
Dupont ERA Makelaars B.V

Jan van Zutphenstraat 85
3119 BN SCHIEDAM

verkocht

Starters opgelet! Aan de rand van het centrum gelegen maisonnette met 3 slaapkamers. De woning is gelegen op de eerste verdieping en de begane grond.
De woning is gelegen op loopafstand van station Schiedam Centrum, waardoor u de trein, metro, bus en tram zeer gemakkelijk kunt bereiken.
Het historische stadscentrum van Schiedam is ook zeer dichtbij waardoor u diverse winkels nabij heeft. Diverse uitvalswegen vindt u in de directe omgeving.

Indeling

Begane grond
Gesloten portiek met brievenbussen, bellentableau en intercom. Toegang tot trappenhuis en berging.

Eerste verdieping
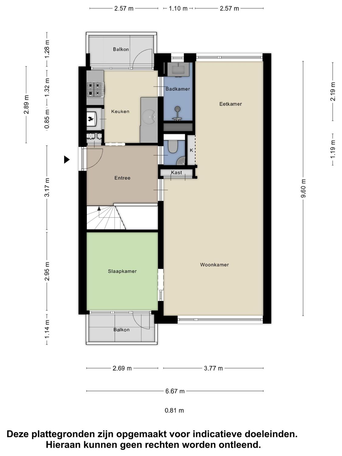
Ruime met toegang tot de woonkamer en keuken. Tevens is de toiletruimte en de begane grond vanuit de hal bereikbaar.
De woonkamer is gelegen over de hele breedte van de woning en beschikt daardoor over veel lichtinval. De eerste slaapkamer is gelegen aan de voorzijde en heeft toegang tot het balkon gelegen op het noordwesten.
De keuken is gelegen aan de achterzijde en is voorzien van diverse inbouwapparatuur, o.a. koelkast vaatwasser, 5-pits gaskookplaat, afzuigkap en oven. Tevens is er een vaste kaste met de cv-opstelling en de deur naar het achterliggende balkon.
De badkamer is bereikbaar vanuit de keuken en is voorzien van een douche en wastafelmeubel.

Begane grond
Overloop met toegang tot de 2 slaapkamers en de wasruimte.
De slaapkamers zijn ca. 10 en 7 m² groot en zijn beide voorzien van kunststof kozijnen.
Onder de trap is de wasruimte/ berging aanwezig.

Berging
De woning beschikt over een eigen berging gelegen in de onderbouw.

Afmetingen
Voor de afmetingen van de diverse vertrekken verwijzen wij u naar de plattegronden.

Bijzonderheden
- Bouwjaar 1962
- Energielabel D
- Gelegen op erfpachtgrond, canon afgekocht t/m 01-07-2036
- Recht van erfpacht eindigend op 01-07-2036. Er is een kortlopende erfpacht van toepassing. Omzetting naar eigen grond kost € 23.390,-. Vraag bij uw financieel adviseur naar uw mogelijkheden.
- Bijdrage vereniging van eigenaren appartement € 130,- per maand
- Verwarming en warm water middels cv-combiketel (Vaillant 2020)
- Grotendeels voorzien van dubbele beglazing
- Opkoopbescherming en ouderdomsclausule van toepassing
- Diverse meubels ter overname
- Oplevering juli 2025

Dupont behartigt de belangen van de verkopende partij. Neem uw eigen NVM aankoopmakelaar mee.

Deze informatie is door ons kantoor met de grootste zorg samengesteld aan de hand van de door de verkoper aan ons ter hand gestelde gegevens. Derhalve kunnen wij geen garanties verstrekken, noch kunnen wij op enigerlei wijze eventuele aansprakelijkheid voor deze gegevens aanvaarden. Alle verstrekte informatie moet uitsluitend gezien worden als een uitnodiging tot nader overleg dan wel tot het uitbrengen van een bod.

Overdracht

Status
verkocht
Aanvaarding
in overleg

VvE checklist

Inschrijving KVK
Ja
Jaarlijkse vergadering
Ja
Periodieke bijdrage
Ja (127,00 per maand)
Reservefonds aanwezig
Ja
Onderhoudsplan
Ja
Opstalverzekering
Ja

Bouw

Soort woning
appartement
Soort appartement
portiekflat
Aantal woonlagen
2
Woonlaag
1
Bouwvorm
bestaande bouw
Bouwjaar
1962
Open portiek
nee
Huidige bestemming
woonruimte
Onderhoud binnen
goed
Onderhoud buiten
goed
Voorzieningen
glasvezel kabel
Isolatie
gedeeltelijk dubbel glas

Energie

Energielabel
D
Verwarming
cv ketel
Warm water
cv ketel
C.V.-ketel
gas gestookte combi-ketel uit 2020 van Vaillant, eigendom

Bergruimte

Parkeergelegenheid
betaald parkeren, parkeervergunningen
Schuur/berging
box

Indeling

Aantal kamers
4
Aantal slaapkamers
3

Buitenruimte

Ligging
aan rustige weg, in woonwijk

Oppervlakten en inhoud

Woonoppervlakte
84 m²
Bergruimte oppervlakte
3 m²
Buitenruimte oppervlakte
6 m²

Bouw

Soort
geen garage
Capaciteit
voorzien van elektra
Jan van Zutphenstraat 85, SCHIEDAM
Jan van Zutphenstraat 85, SCHIEDAM
Jan van Zutphenstraat 85, SCHIEDAM
Jan van Zutphenstraat 85, SCHIEDAM
Jan van Zutphenstraat 85, SCHIEDAM
Jan van Zutphenstraat 85, SCHIEDAM
Jan van Zutphenstraat 85, SCHIEDAM
Jan van Zutphenstraat 85, SCHIEDAM
Jan van Zutphenstraat 85, SCHIEDAM
Jan van Zutphenstraat 85, SCHIEDAM
Jan van Zutphenstraat 85, SCHIEDAM
Jan van Zutphenstraat 85, SCHIEDAM
Jan van Zutphenstraat 85, SCHIEDAM
Jan van Zutphenstraat 85, SCHIEDAM
Jan van Zutphenstraat 85, SCHIEDAM
Jan van Zutphenstraat 85, SCHIEDAM
Jan van Zutphenstraat 85, SCHIEDAM
Jan van Zutphenstraat 85, SCHIEDAM
Jan van Zutphenstraat 85, SCHIEDAM
Jan van Zutphenstraat 85, SCHIEDAM
Jan van Zutphenstraat 85, SCHIEDAM
Jan van Zutphenstraat 85, SCHIEDAM
Jan van Zutphenstraat 85, SCHIEDAM
Jan van Zutphenstraat 85, SCHIEDAM
Jan van Zutphenstraat 85, SCHIEDAM
Jan van Zutphenstraat 85, SCHIEDAM
Jan van Zutphenstraat 85, SCHIEDAM
Jan van Zutphenstraat 85, SCHIEDAM
Jan van Zutphenstraat 85, SCHIEDAM
Jan van Zutphenstraat 85, SCHIEDAM
Jan van Zutphenstraat 85, SCHIEDAM
Jan van Zutphenstraat 85, SCHIEDAM
Jan van Zutphenstraat 85, SCHIEDAM plattegrond 0
Jan van Zutphenstraat 85, SCHIEDAM plattegrond 1
Jan van Zutphenstraat 85, SCHIEDAM plattegrond 2

Meer weten over Jan van Zutphenstraat 85 in SCHIEDAM?